亭子是指有顶无墙的透空型小型建筑,是园林中不可缺少的建筑,“无亭不成园”在我国有悠久的历史,它是供游人观赏、乘凉小憩之所,代表建筑有(北京北海见春亭、苏州拙政园扇面亭。雍和宫碑亭)



重檐八角亭单围柱做法,其基本构架是在下层檐檩子上安置井字趴梁,要注意趴梁轴线须与上层檐檩轴线在平面上重合,以保证童柱(即上层糖柱)居中立于趴梁之上。井字扒梁内角安置小抹角梁。在柱位上安置墩斗,墩斗斗上面立童柱。在童柱之间由下至上分别安置承椽枋、围脊板、围脊枋、围脊楣子。


上檐构造与六角亭相似,平面有八棵柱,柱头安装箍头檐材,柱头上置角云,角云之间安垫板,垫板以上安装搭交檐棵。檐棵上面的长趴梁,沿进深方向安放,短队梁则沿面宽方向安放,长短趴梁轴线的平面位置与金檩轴线的平面位置重合,这样可以保证金枋、金檩完全叠落在趴梁上。井字趴梁的内角,有时还加四根小抹角梁,以承接另外四根金檩。八角亭转角处安装角梁,角梁后尾装由戗支撑雷公柱。

平面图

立面图、剖面图

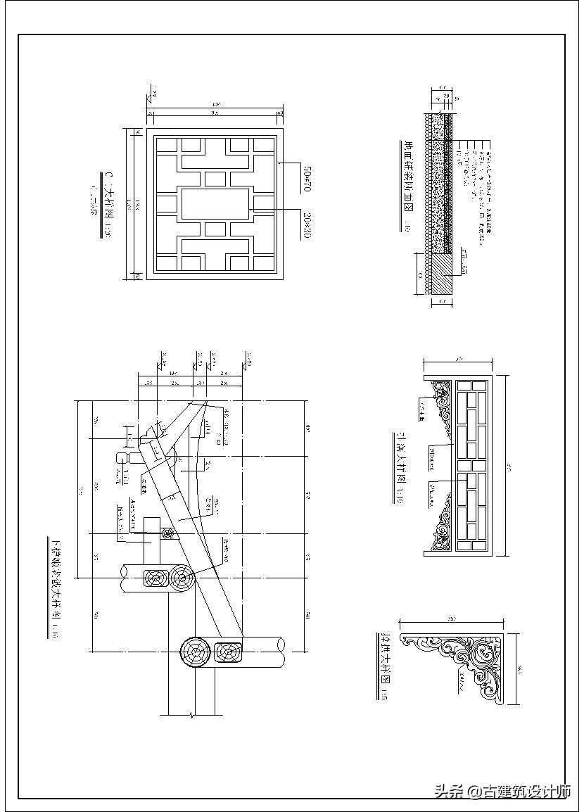
梁架平面图

屋面仰、俯视图

檐椽大样图

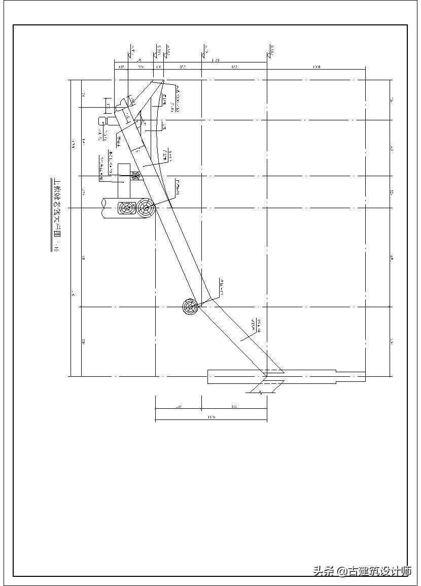
老嫩戗大样图

老嫩戗大样图

节点大样图















